
咨詢熱線
0537-3657638
服務熱線
15376565688
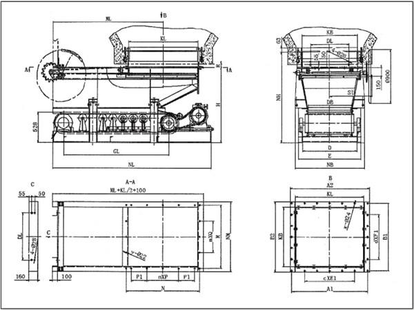
防砸閥門帶式(甲帶)給料機的閘門下增加了防砸閘門,當料倉中的大塊物料落下通過給料機時,首先了落在防砸閘門上,防砸閘門在物料的重力作用下打開,使物料經緩沖后落到甲帶上,甲帶對物料起再一次的緩沖作用。因此,防砸閥門帶式(甲帶)給料機有效防止了大塊物料砸傷甲帶、皮帶、托輥。
1、使用專利二維柔性甲帶,提高了給料機的耐砸、防斷裂、重載啟動等性能。
2、使用專利防打滑膠帶,克服了膠帶工作中的打滑、跑偏問題。
3、使用專利緩沖托輥,增強了抗重砸、防水塵、防銹蝕能力。
1、給料量大、運行功率小、節能、環保。
2、調整方便有手動或變頻無級調速。
3、運行平穩、噪音小、保護環境。
4、磨損小、維修量少、安裝維修簡便、使用壽命長。
5、零部件通用性強,安裝、維修簡便。
給料量主要靠調整給料機運行速度來調整:如為手動無級變速機,務必在給料機運行時調節變速機調節手柄,如為變頻器則需按隨機說明書要求,設定變頻器運行參數改變運行速度,達到所需給料量。
點擊下載全部文件:https://pan.baidu.com/s/1UtAgJmugPhu2H9fNNJ1jHQ