
咨詢熱線
0537-3657638
服務熱線
15376565688
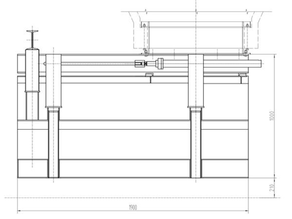
旋連平除倉壓精準全息稱重自動裝載(無人值守)系統的料倉出料口下方安裝了自動輸送汽車衡,并且汽車識別系統可以識別到待裝載的汽車。旋連平除倉壓精準全息稱重自動裝載(無人值守)系統的汽車輸送裝置可以完成一次裝料、稱重的過程。具有起動、停止迅速、性能穩定可靠、抗干擾能力強的諸多優點。
料倉出料口下方安裝了自動輸送汽車衡
1、計量控制柜對采集的各種信號進行計算及對閘門自動控制。
2、抗干擾能力強、通訊快捷、啟停迅速、安全可靠。
3、現場屏顯操作端具備人機界面,采用中(英)文界面,人機交互方便簡單快捷,能夠設置各種參數,及時調整、控制。
4、設置就地控制按鈕,方便現場安裝調試,也可就地進行操作和控制。
1、訂貨時應提供詳細基礎資料,如:安裝位置、安裝空間尺寸、精度要求、控制要求等;
2、如用戶有其它特殊要求,經雙方協商可提供特殊規格配置性能;
3、該系統機、電、液、信息化、自動化綜合高標準為用戶服務,為確保系統具有針對性全方位的高質量服務,使系統長期運行精準、穩定,請用戶提前與本公司聯系深度磋商最佳設計制造使用方案。
1、本裝備從供貨之日起一年內實行三包;
2、本公司24小時提供電話服務,服務人員可在48小時內抵達。
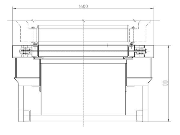
可以完成一次裝料、稱重的過程
點擊下載全部文件:https://pan.baidu.com/s/1myySX8tg8Ok2ewy7aUmVmQ